Every renovation or redevelopment project needs a demolition plan, a type of drawing that gives contractors clear instructions about existing building elements that need to be removed to achieve the desired project outcome.
This article explores what demolition plans are, who creates them, and why they matter, especially for safety, cost control, and sustainability.
A demolition plan is a type of drawing that shows what parts of an existing building or site will be removed or preserved. These plans are typically created as part of a renovation, addition, or adaptive reuse project.
Most demolition plans start with an existing-conditions floor plan. From there, elements to be removed are clearly marked, often using dashed lines, shading, or color coding. What stays is shown in a neutral tone. What goes is unmistakable.

Responsibility varies based on the scope of demolition. For smaller residential projects, the architect may be responsible for a demolition plan that includes MEP elements. On larger projects, architects may be responsible for a plan to demolish architectural elements, while an MEP engineer would be responsible for MEP elements, and so on. But the architect typically coordinates the information and ensures its alignment with the overall design intent.
Because demolition plans affect safety, sequencing, and cost, they also play a role in permitting and liability. Clear documentation helps protect everyone involved.
With a focus on sustainability in the AEC industry, adaptive reuse and renovation of existing buildings have surpassed the construction of brand-new facilities. Reusing or renovating an existing structure often has a lower environmental impact than complete demolition and starting from scratch.
In renovation projects, walls, ceilings, finishes, and outdated systems are selectively demolished while the main structure remains intact. This approach saves money, shortens schedules, and reduces waste.

Image courtesy of Studio Upwall.
Planning for demolition leads to controlled, intentional work that sets the stage for everything that follows.
A good demolition plan helps:
Without clear demolition plans, contractors are forced to make assumptions in the field. That’s where mistakes, delays, and disputes tend to start.
During construction, the removal of existing building elements plays an important role in achieving sustainability goals.
Planning ahead makes it possible to reclaim and reuse materials instead of sending them to a landfill. Think old-growth wood flooring, brick, doors, or fixtures that still have value. Identifying these items early allows you to plan for careful removal and on-site or off-site storage.
Some firms also use demolition plans to support lifecycle analysis. Tracking what’s removed, reused, recycled, or disposed of means you can measure environmental impact more accurately.
Handling waste responsibly contributes to a more sustainable outcome.
Creating thorough demolition plans gives you the opportunity to flag hazardous materials such as asbestos or lead paint. This allows you to plan for safe disposal early.
Vectorworks Architect’s design and BIM capabilities allow you to add data tags and other markups, which clearly annotate how to remove and dispose of materials and which materials to salvage and reuse directly in 2D drawings or 3D models. This makes the information visible and accessible to everyone on the project and greatly reduces guesswork.
Tracking waste streams and equipment usage can also support official sustainability metrics, including documentation for certifications like LEED.
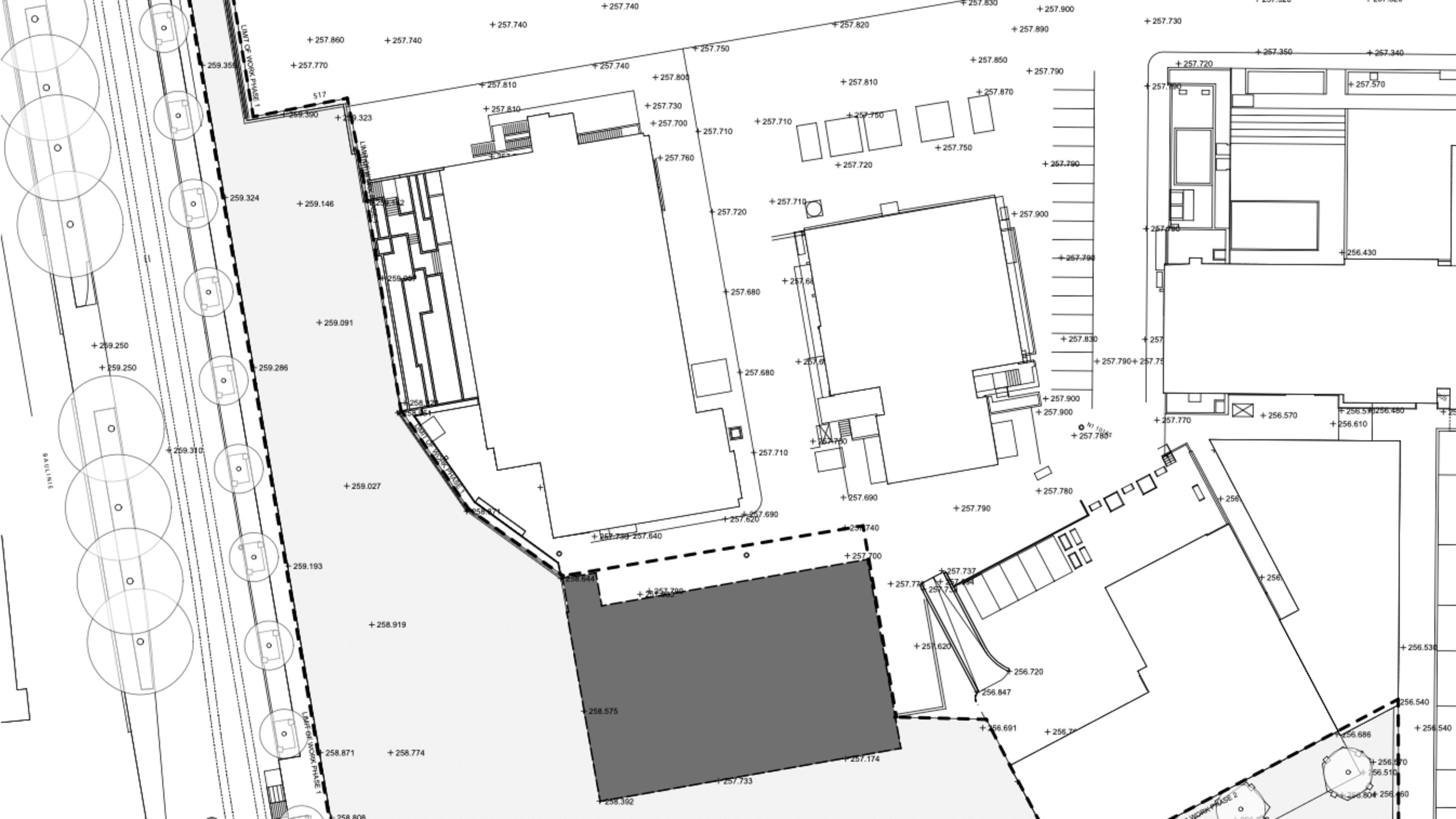
Buildings don’t exist in a vacuum. Often, demolition plans need to account for the land on which the building is built. Having access to a site plan gives you the base you need to properly plan for your demolition project’s impacts on the surrounding site.
Site demolition plans often include:
These site considerations are critical for safety, compliance, and coordination, especially on tight or urban sites.
Image courtesy of Matthew Cunnignhan Landscape Design.
The process usually starts with a detailed survey of existing conditions. Architects document what’s there, note discrepancies, and confirm structural systems.
From there, demolition drawings are developed by marking what will be removed and adding notes for sequencing, protection, and special handling. In renovation projects, demolition plans are often coordinated closely with proposed floor plans, so changes are easy to track.
Some designers integrate demolition information directly into their overall model, rather than treating it as a separate drawing set.
Capabilities like Phasing in Vectorworks make this approach more practical and easier to maintain over time. With the Phasing workflow, you’re able to create clear documentation to provide a better, more sustainable project outcome. You can learn more about Phasing in Vectorworks below.
Subscribers receive news, customer stories, success and learning tips, event information, and other important announcements from Vectorworks.
By submitting this form, you agree that Vectorworks, Inc. and its authorized partners may contact you in regards to news, offers, and the use of our software, services, and platforms. Learn more about our privacy practices and your data on our privacy page.*