Data visualization is exactly what it sounds like — it transforms raw data into a visual format. This is incredibly valuable in the realm of Building Information Modeling (BIM).
BIM model data consists of textual or numerical values that, while rich with information, can be difficult to interpret in their raw form. Designers, however, are inherently visual thinkers. Embedding BIM data into a 3D visual context makes it so you and other collaborators can better understand, analyze, and make data-driven decisions, especially considering the fact that the Architecture, Engineering, and Construction (AEC) industry generates vast amounts of data — BIM data, while crucial in today’s landscape, is meaningless unless it can be accessed and interpreted effectively. This is where data visualization can play a huge role.
One application of data visualization in BIM is assessing fire ratings. Color-coding elements based on fire resistance allows you to quickly verify compliance with fire regulations. For example, all 30-minute fire-rated objects could be displayed in red, making it easier to confirm that necessary protections are in place.
Data visualization in Vectorworks software enables you to apply rule sets that override the display style of a model, ensuring critical safety information is visually clear when you need it to be.

Data visualization in Vectorworks software showing fire ratings of walls.
Choosing the right materials and finishes can be challenging, but data visualization simplifies the process. The image below shows a ceramic tile finish on a bathroom’s walls. Data visualization allows you to showcase various textures quickly for an easy way to evaluate design options without actually changing the model.

Complex projects can have an overwhelming amount of partition types. By assigning different colors to partitions based on type or use case, you and collaborators can quickly locate partition types on a plan visually instead of relying solely on annotations. This enables more effective and faster quality assurance, as you can quickly find problematic areas and ensure proper specifications, leading to more accurate documentation.

A Vectorworks drawing with color-coded wall types.
Room finishes can help you and contractors visualize different finishes to be applied to surfaces throughout a project. A finish plan with color-coded attributes can quickly show these finishes with an easy-to-understand legend, which can streamline communication between you and contractors and reduce risk change orders to modify finishes after installation. This reduces confusion and helps ensure accurate implementation during construction.

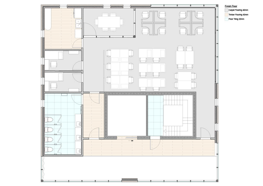
A floor finish plan using data visualization to display different floor finishes with hatches and colors.
Sustainability is a growing priority in architectural design. Using data visualization, you can assess thermal performance by color-coding elements based on U-values. This makes it easier to identify areas where insulation improvements are needed to enhance energy efficiency.

Data visualization displaying various U values on a Vectorworks model.
Mistakes in BIM models can lead to costly delays. Data visualization makes information much easier to process so you can verify your work. Mistakes like missing fire ratings, objects left in the wrong class or layer, or unclassified BIM elements are all easier to recognize when using graphical rulesets.

Building elements without IFC data attached to them highlighted in red with data visualization.
You’ve explored a few common examples of how data visualization enhances workflows, but the potential within Vectorworks software goes far beyond that. Any data field or value tied to an object can serve as the foundation for dynamic visual displays. Let your creativity carry you — think about how this feature can highlight key information for collaborators and clients in visually impactful ways.
Subscribers receive news, customer stories, success and learning tips, event information, and other important announcements from Vectorworks.
By submitting this form, you agree that Vectorworks, Inc. and its authorized partners may contact you in regards to news, offers, and the use of our software, services, and platforms. Learn more about our privacy practices and your data on our privacy page.*